Bei diesem attraktiven Anwesen handelt es sich um ein gepflegtes Zweifamilienhaus in begehrter Lage von Nürnberg-Eibach. Das Haus wurde 1957 erbaut und im Jahr 2015 umfassend saniert, sodass es sich heute in einem sehr guten, gepflegten Zustand präsentiert. Mit einer Gesamtwohnfläche von ca. 217 m² verteilt auf zwei Wohneinheiten bietet die Immobilie ideale Voraussetzungen sowohl für Eigennutzer als auch für Kapitalanleger.
Das großzügige Grundstück umfasst ca. 1.285 m² und besticht durch seinen idyllischen Garten mit Pool sowie mehrere Terrassenbereiche, die zum Entspannen und Verweilen einladen. Eine Doppelgarage und ein Außenstellplatz sorgen für komfortable Parkmöglichkeiten direkt auf dem Grundstück.
Die Erdgeschosswohnung (ca. 87 m²) ist derzeit leerstehend und überzeugt durch einen durchdachten Grundriss: ein helles Wohnzimmer mit offenem Essbereich, eine Küche, ein Schlafzimmer, ein Kinderzimmer, ein Arbeitszimmer, ein modernes Tageslichtbad mit Dusche sowie ein separates Gäste-WC. Eine große, teilweise überdachte Terrasse bietet einen herrlichen Blick ins Grüne. Zur Wohnung gehört zudem ein eigenes Kellerabteil mit Waschmaschinenanschluss. Die Soll-Kaltmiete liegt bei ca. 957 € zzgl. Nebenkosten.
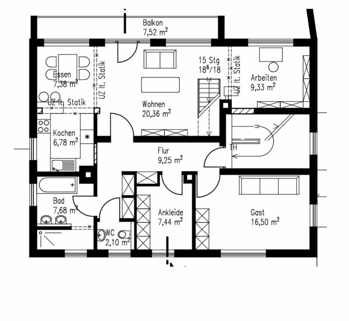
Die Obergeschosswohnung mit ausgebautem Dachgeschoss (ca. 130 m²) ist aktuell vermietet. Sie verfügt über ein großzügiges Wohnzimmer mit offenem Ess- und Kochbereich, ein Schlafzimmer, ein Kinderzimmer, ein Arbeitszimmer sowie ein Badezimmer mit Dusche und Badewanne. Über eine innenliegende Treppe gelangt man in das Dachgeschoss mit einem weiteren Schlafraum und zusätzlichem Badezimmer. Ein sonniger Balkon (ca. 7,5 m²) rundet das harmonische Wohngefühl ab. Auch diese Wohnung verfügt über ein eigenes Kellerabteil mit Waschmaschinenanschluss. Zwei Stellplätze in der Doppelgarage sind der Wohnung zugeordnet. Die derzeitige Kaltmiete beträgt 920 € zzgl. Nebenkosten.
Das Haus ist voll unterkellert und wird über eine Gaszentralheizung (Erdgas) beheizt. Ein Energieausweis liegt zur Besichtigung vor.
Die Immobilie ist ab sofort bezugsfrei und steht zum Verkaufspreis von 900.000 € zum Erwerb bereit.
Dieses charmante Zweifamilienhaus vereint stilvolles Wohnen, großzügige Flächen und naturnahe Erholung – perfekt geeignet für Familien oder Investoren, die eine solide Kapitalanlage in ruhiger, dennoch gut angebundener Lage Nürnbergs suchen.


















































































